£415,000 Leasehold
Sienna Alto, Lewisham, SE13
Key Features
-
10th Floor apartment
-
Wrap around balcony
-
2 double Bedrooms
-
Amtico (oak wood effect) flooring
-
Chain free
-
South facing
-
Fantastic view
-
High spec fitted kitchen/reception
-
Concierge Service
Location
Map cannot be displayed
Either your web browser cannot handle Google maps or you need to adjust your browser settings. Information on how to do this can be found on the Google Maps Help website.
Greenwich Park, Lewisham Shopping Centre and the new Glassmill Leisure Centre are all on the doorstep, with access to Canary Wharf and Central London in minutes via DLR and Rail connections at Lewisham.
Ground Rent - Approx £470.20pa
Service Charge - Approx £2728.18pa
Lease Length - 125 years (less 5 days) from 9th May 2012
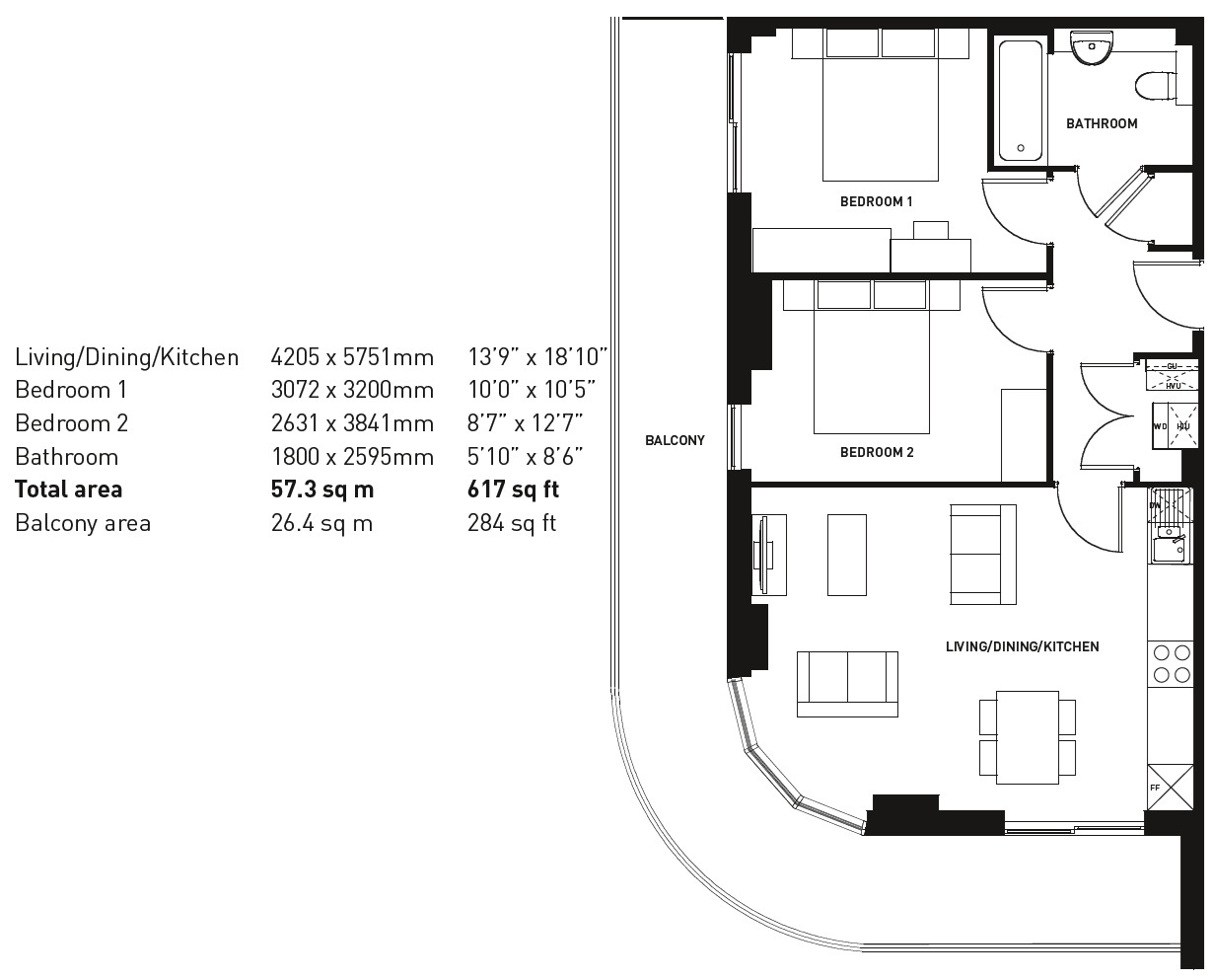
Approx Size - 57sqm
See full size map
EPC graph
Floorplans
(Click to view full size)
Share this property
Property Summary
A beautiful 10th floor apartment in the Sienna Alto building of the Renaissance Development in Lewisham, just five minutes walk from Lewisham DLR and Rail stations, with an array of amenities close by.
The apartment offers a fantastic view across the city with full length windows, with a fully fitted kitchen and oak effect flooring throughout.
Additional Information
For more details please call us on 0207 476 9822 or send an email to [email protected].
Administration Fee
An administration fee is applied at the same time as your first month's rent and deposit is collected. This fee is charged at £250.00 + V.A.T for 1-2 tenants, with an additional £100.00 + V.A.T for each subsequent tenant (so 4 tenants moving into the same property would be £450.00 + V.A.T).
This fee includes referencing, preparation of tenancy agreement and pre-tenancy coordination. We charge no additional fee upon renewal/extension of tenancy.
References
Once you offer is accepted in principal, you will be asked to complete a 'Tenant Application Form'. This information will then be used to take up a landlord's reference, employer's reference and credit check where applicable. If you are self-employed or living with friends, we will seek alternative references (such as an accountant's reference, proof of earnings).
If requested, these references will be passed to the landlord for final approval.
A scan/copy of up to date photo ID is also required, in the form of drivers licence or passport. Foreign applicants must also provide a scan/copy of any applicable visas.
Deposit
As standard we take six weeks rent as deposit which will be held by the government approved Deposit Protection Service. More information about the DPS can be found here:
https://www.depositprotection.com & https://www.depositprotection.com/documents/tenant-guide-custodial.pdf
Deposits will be registered within 30 days of commencement of tenancy, and returned within 30 days of the tenancy ending unless return of deposit is delayed by dispute (deposits are normally returned well before 30 days).
Check in and check out procedure
The landlord will instruct and pay for any check in arrangements (full inventory, inventory check-in service etc). Unless otherwise agreed prior to commencement of the tenancy, the tenant will be liable for check-out costs.
A standard check out arranged by ourselves carries a fee of:
Studio - £90.00 + V.A.T
1 Bed - £100.00 + V.A.T
2 Bed - £115.00 + V.A.T
3 Bed - £130.00 + V.A.T
If the landlord arranges for an independent check out inspection this fee may vary.
Deductions will be made from the deposit based upon this check out report.